全國客服電話
028-85248111

中華文化,源遠流長,贈人書畫,手留余香!--大安“三館”

發表時間:2021-09-02 11:32

該項目位于大安區新民鎮,館舍建筑面積1302㎡,室外活動場地使用面積3250㎡,為區級重大項目。大安區文化館、圖書館、美術館,三館為整體合建。

◎項目效果圖

新建文化館建設面積3000㎡,圖書館建設面積3500㎡,美術館建設面積450.94㎡按照國家區縣一級館建設和配置,設有各專業體驗館、展廳、演藝廳、創作室、閱覽室、珍藏室、文化館、演藝廳、舞蹈排練室、交流廳等。

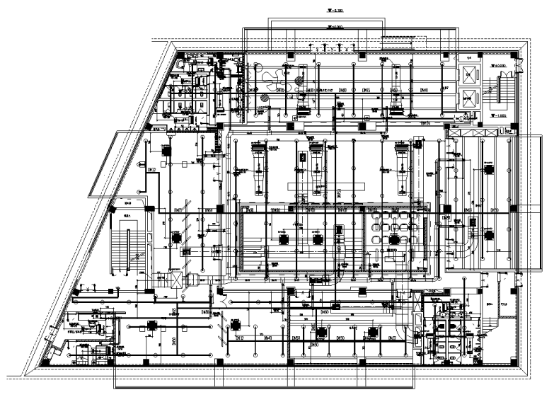
◎暖通設計圖(部分示意)

本項目采用帶靜電空氣消毒凈化器的風機盤管+新風的空調系統,空調機組高效過濾,在干管上設置除消聲器外,在必要位置設置消聲彎頭與消聲靜壓箱,設備加減震墊。

室內設計參數

根據民用建筑供暖通風與空氣調節設計規范圖書館建筑設計規范及建設單位的具體要求,確定各部位的設計標準。

空調冷熱源水系統原理

由于本項目的設計目標是綠色二星建筑,故在空調風系統中也采用了一系列的節能措施,如該項目新風均設置熱回收裝置,與排風換熱。通過對排風的熱回收,來調整新風的溫度,降低空調能耗,經處理后的新風與回風混合后再送入空調機組。

空調機房布置

設備進場



閱覽室、珍藏室采用恒溫恒濕空調系統,設置水冷型恒溫恒濕空調機組,每晝夜溫度波動幅度不大于±2℃,±5%

◎外機吊裝



◎完工驗收






聯系我們

——


Phone   :028-85248111,13981715371

E-mail    : 88419247@qq.com

司地址:金牛區華僑城 . 創想中心B座1801室

商場地址:錦江區居然之家琉璃店1號廳-1樓

專賣店地址:龍泉驛區十陵街道靈龍路443號

公司簡介

——

——

成都零度機電設備有限公司,坐落于成都華僑城創想中心。公司始建于2011年是一家集設計、銷售、安裝、售后于一體的服務型企業,公司員工 180多人,致力于為商業和家庭用戶提供“分體空調、中央空調、家庭采暖、中央新風和中央凈水系統”的整體解決方案。