全國客服電話
028-85248111

同為行車人,相見禮為先--南部客運中心

發表時間:2021-09-23 17:06

南部城北客運中心,建設占地面積47088平方米主要包括汽車客運中心、公共停車樓、公交樞紐中心、出租車及換乘中心及配套基礎設施等。

◎客運站門頭

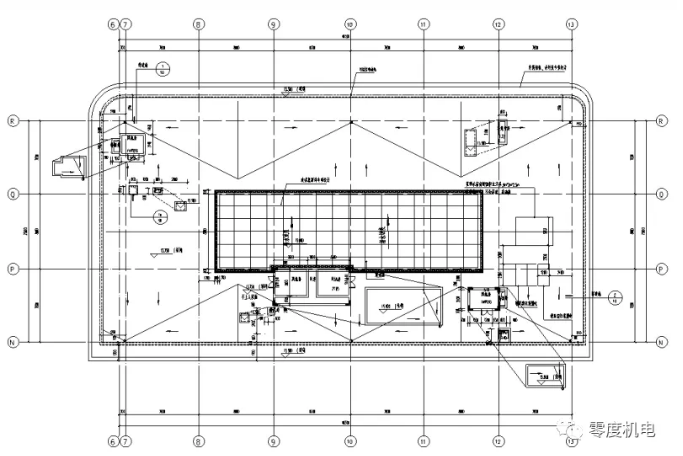
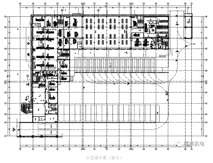
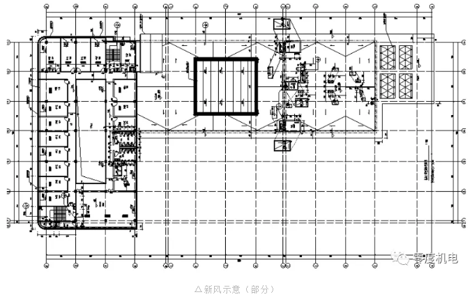
本項目采用新風加風機盤管系統的空調,采用吊頂式空氣處理機組加全熱交換式換氣機,既引入室外新風,又排除室內污濁空氣、并回收排風中的冷量。空調季節時全熱交換機與吊頂式空調機同步開啟,非空調季節時開啟屋頂排風機通風。

◎暖通設計圖

合理選用采暖和空氣調節系統室內設計參數及設計新風量,根據建筑不同的使用功能與需求,選擇適當的設計參數(使用空間的大小、人員疏密、空調時段、室內溫濕度要求、換氣次數等),劃分不同的空氣調節區和選用配套的設計系統。


本工程各空調定風量系統中風機的單位風量耗功率最大為0.2550.42,變風量系統中風機的單位風量耗功率最大為0.440.58,普通機械通風風機的單位風量耗功率最大為0.3010.32。通風系統均采用了自動控制,既提高了使用的舒適性,又防止了因超溫和不合理運行造成的浪費。

施工現場


城北客運中心建成投入后,將毗鄰南部火車站,優化交通布局,能夠實現火車站旅客與南部縣部分鄉鎮旅客的零換乘極大地方便了旅客出行。

◎完工驗收


聯系我們

——


Phone   :028-85248111,13981715371

E-mail    : 88419247@qq.com

司地址:金牛區華僑城 . 創想中心B座1801室

商場地址:錦江區居然之家琉璃店1號廳-1樓

專賣店地址:龍泉驛區十陵街道靈龍路443號

公司簡介

——

——

成都零度機電設備有限公司,坐落于成都華僑城創想中心。公司始建于2011年是一家集設計、銷售、安裝、售后于一體的服務型企業,公司員工 180多人,致力于為商業和家庭用戶提供“分體空調、中央空調、家庭采暖、中央新風和中央凈水系統”的整體解決方案。